ПОПУЛЯРНЫЕ ОБЪЕКТЫ С
ОТКРЫТЫМИ ПРОДАЖАМИ
КП Сезоны
КП Премьер
КП Ривьера
Проект Дюна
Проект Изумруд
Проект Ницца
Салаирский тракт
КОМФОРТ ГОРОДСКОЙ ЖИЗНИ ВОПЛОЩЁННЫЙ ЗА ГОРОДОМ
63 - 100 кв.м.
площадьот 6 соток
участокот 8 000 000
стоимостьНовоРешетникова — концептуальный проект нового поколения, где гармония и совершенство рождены синергией уникального месторасположения в экологически чистом районе Тюмени и передового европейского опыта в строительстве загородных домов и организации пространства. В этом проекте, как в мозаике, каждый элемент тщательно подобран, благодаря чему рождается воплощение современных стандартов загородного проживания.
СОЗДАНО ПРИРОДОЙ ДЛЯ СЧАСТЛИВОЙ ЖИЗНИ
Посёлок имеет уникальное расположение — в окружении смешанных лесов и водоёмов, в экологически чистом районе Тюмени, где расположена база отдыха «Верхний бор», санатории, курорты, детские оздоровительные лагеря и SPA комплексы.
ТИПОВЫЕ ПЛАНИРОВКИ ОБЪЕКТОВ
Площадь от 63 м2
Стоимость от 8.500.000 руб
Септик, скважина, 2 спальни, 1 санузел, Высота потолка 2,95, Площадь family room 21,4 м2, Все включено (мебель, ремонт)
Площадь от 71.4 м2
Стоимость от 8.000.000 руб
Септик, скважина, 2 спальни, 2 санузла, Высота потолка 2,95, Площадь family room 29,30 м2, Отделка white box
Площадь от 85 м2
Стоимость от 9.000.000 руб
Септик, скважина, 2 спальни, 2 санузла, Высота потолка 2,95, Площадь family room 34,9 м2, Отделка white box. Есть дома из газоблока, силикатного блока и с дизайнерским ремонтом и мебелью
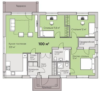
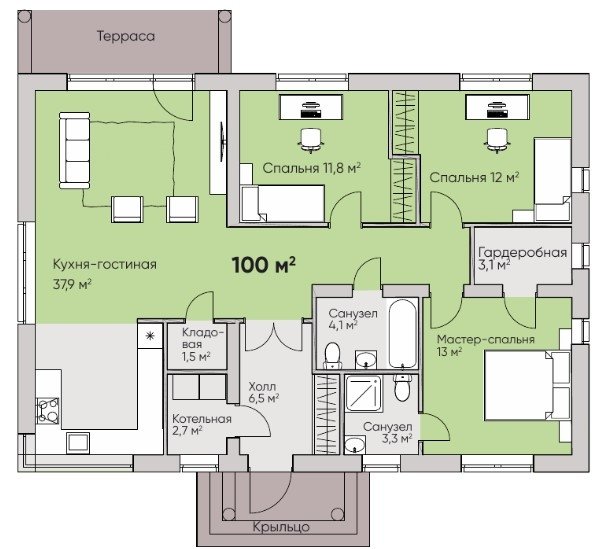
Площадь от 100 м2
Стоимость от 9.900.000 руб
Септик, скважина, 3 спальни, 2 санузла, Высота потолка 2,95, Площадь family room 37,9 м2, Отделка white box
КП Ново-Решетникова ЭТО
▪ закрытая территория, видеонаблюдение, КПП ▪ детская площадка и общественные пространства ▪ асфальтированные дороги и тротуары ▪ прогулочная аллея ▪ уличное освещение
▪ автобусная остановка в 150 метрах ▪ объекты социальной инфраструктуры в 10 минутах от посёлка ▪ ТРЦ «Верхний Бор» в 5 минутах: пункты выдачи интернет-заказов, супермаркет, фудкорт
▪ индивидуальные скважина и биостанция ▪ сервисная компания ▪ «клубное» расположение домов ▪ тупиковые улицы
▪ надёжный фундамент
▪ энергоэффективность
▪ продуманные планировки
Посёлок имеет единое архитектурное решение в стиле современной классики
Соседство, организованное по несколько домов в тупиковых улицах, создает атмосферу добрососедства — в маленьком квартале людям проще знакомиться и дружить семьями
В клубе, граничащем с лесом, расположен искусственный пруд, выход на который организован пирсами с каждого участка
В каждом клубе есть территория для отдыха, в центре посёлка расположена детская площадка — здесь комфортно и безопасно
ПОПУЛЯРНЫЕ ОБЪЕКТЫ С
ОТКРЫТЫМИ ПРОДАЖАМИ
КП Сезоны
КП Премьер
КП Ривьера
Проект Дюна
Проект Изумруд
Проект Ницца
НЕ НАШЛИ ПОДХОДЯЩЕЕ?
Укажите параметры дома и мы подберем варианты в течение дня бесплатно