Дома в Тюмени

Дома готовые и на заказ

Двухэтажный дом с мансардным этажом

Проект Ницца

195

площадь (кв.м.)

13 * 14

габариты

от 7 505 000

стоимость

Эркер в гостиной придает интересное объемное решение проекту. Из кухни есть выход на террасу - место для отдыха и встреч с гостями. В проекте предусмотрены три комнаты и четыре санузла, один из которых можно при желании переоборудовать в гардеробную или зону для хранения. К дому пристроен гараж. Этот проект прекрасно подойдет большой семье.

ТИПОВЫЕ ПЛАНИРОВКИ ОБЪЕКТОВ

Дом (1 этаж)

Площадь от 195 м2

Стоимость от 7.505.000 руб

В проекте предусмотрены три комнаты и четыре санузла, один из которых можно при желании переоборудовать в гардеробную или зону для хранения. К дому пристроен гараж.

Пожалуйста укажите телефон
Согласен с политикой конфиденциальности
Необходимо согласие
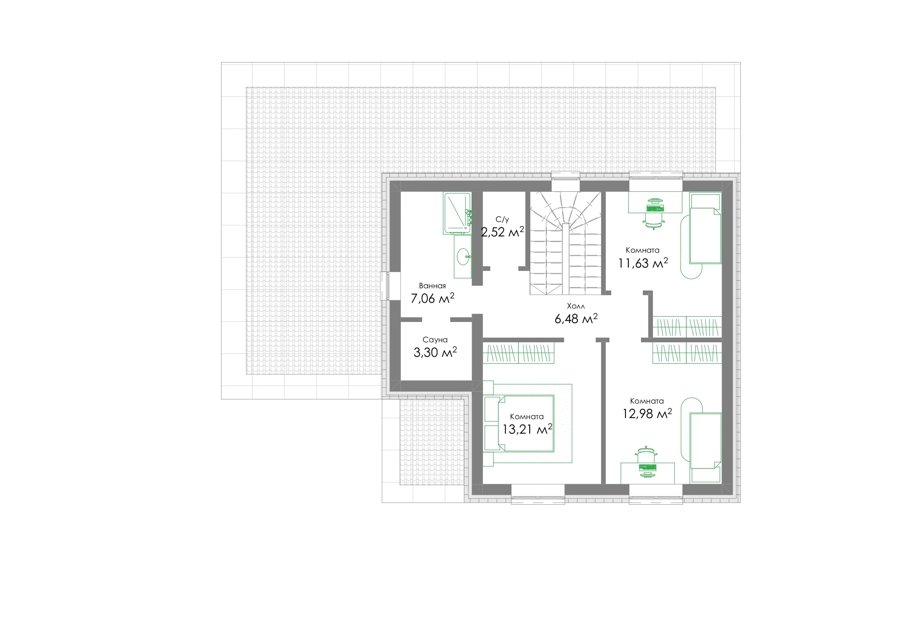
Дом (2 этаж)

Площадь от 195 м2

Стоимость от 7.505.000 руб

В проекте предусмотрены три комнаты и четыре санузла, один из которых можно при желании переоборудовать в гардеробную или зону для хранения. К дому пристроен гараж.

Пожалуйста укажите телефон
Согласен с политикой конфиденциальности
Необходимо согласие

Проект Ницца ЭТО

Фундамент - монолитный плита; Кладка цоколя из полнотелого кирпича; Стены из керамзитоблока 300мм; Кровля с увеличенными свесами по деревянным стропилам из металлочерепицы; Вентиляционные шахты из керамического кирпича

Фундамент - монолитный на буронабивных сваях; Стены - Керамзитоблок 300мм; Перекрытия - Деревянные балки; Крыша – металлочерепица по деревянным стропилам; Облицовка фасада кирпичом; Утепление фасада; Монтаж карнизов; Монтаж водосточной системы; Монтаж оконных блоков; Монтаж металлической входной двери

Фундамент - монолитный на буронабивных сваях; Стены - Керамзитоблок 300мм; Перекрытия - Деревянные балки; Крыша – металлочерепица по деревянным стропилам; Облицовка фасада кирпичом; Утепление фасада; Монтаж карнизов; Монтаж водосточной системы; Монтаж оконных блоков; Монтаж металлической входной двери; Монтаж системы внутреннего

ОНЛАЙН КОНСУЛЬТАЦИЯ

получите больше информации о проекте
и задайте свои вопросы

НЕ НАШЛИ ПОДХОДЯЩЕЕ?

Укажите параметры дома и мы подберем варианты в течение дня бесплатно

Пожалуйста укажите телефон
Согласен с политикой конфиденциальности
Необходимо согласие
Написать в мессенджер