Дома в Тюмени

Дома готовые и на заказ

Изумруд одноэтажный проект с гаражом и уютной крытой террасой.

Проект Изумруд

120

площадь (кв.м.)

11 * 16 м

габариты

от 6 180 000

стоимость

"Изумруд" одноэтажный проект с гаражом и уютной крытой террасой. Облицовка фасада кирпичом в сочетании с деревянными балками придают дому особенный стиль. В проекте две спальни, отдельная кухня классического типа, просторная ванная и гостевой санузел. Просторная кухня-столовая выходит на террасу, которую можно использовать как место для отдыха, игровой детской зоны или утреннего кофе.

ТИПОВЫЕ ПЛАНИРОВКИ ОБЪЕКТОВ

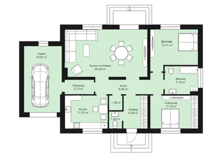
Дом (1 вариант планировки)

Площадь от 120 м2

Стоимость от 6.180.000 руб

Одноэтажный проект с гаражом и уютной крытой террасой.

Пожалуйста укажите телефон
Согласен с политикой конфиденциальности
Необходимо согласие
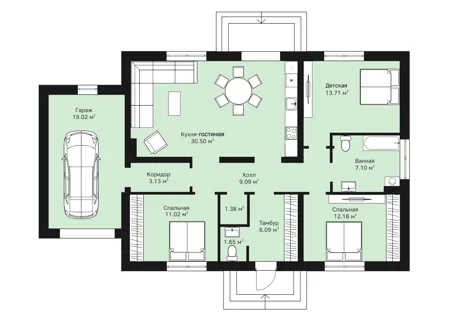
Дом (2 вариант планировки)

Площадь от 120 м2

Стоимость от 6.180.000 руб

Одноэтажный проект с гаражом и уютной крытой террасой.

Пожалуйста укажите телефон
Согласен с политикой конфиденциальности
Необходимо согласие

Проект Изумруд ЭТО

Фундамент - монолитный плита; Кладка цоколя из полнотелого кирпича; Стены из керамзитоблока 300мм; Кровля с увеличенными свесами по деревянным стропилам из металлочерепицы; Вентиляционные шахты из керамического кирпича

Фундамент - монолитный на буронабивных сваях; Стены - Керамзитоблок 300мм; Перекрытия - Деревянные балки; Крыша – металлочерепица по деревянным стропилам; Облицовка фасада кирпичом; Утепление фасада; Монтаж карнизов; Монтаж водосточной системы; Монтаж оконных блоков; Монтаж металлической входной двери

Фундамент - монолитный на буронабивных сваях; Стены - Керамзитоблок 300мм; Перекрытия - Деревянные балки; Крыша – металлочерепица по деревянным стропилам; Облицовка фасада кирпичом; Утепление фасада; Монтаж карнизов; Монтаж водосточной системы; Монтаж оконных блоков; Монтаж металлической входной двери; Монтаж системы внутреннего электроснабжения; Монтаж системы внутреннего водопровода и канализации; Монтаж системы отопления; Утепление и выравнивание перекрытий; Монтаж перегородок; Штукатурка стен

ОНЛАЙН КОНСУЛЬТАЦИЯ

получите больше информации о проекте
и задайте свои вопросы

НЕ НАШЛИ ПОДХОДЯЩЕЕ?

Укажите параметры дома и мы подберем варианты в течение дня бесплатно

Пожалуйста укажите телефон
Согласен с политикой конфиденциальности
Необходимо согласие
Написать в мессенджер